Spatiu de vanzare Constanta, spatiu comercial litoral , spatii comerciale la mare


Agentie Imobiliara FREE LAND
VANZARI » SPATII » Comerciale
Jud. Constanta » CONSTANTA

Spatiu de vanzare Constanta

Categoria VANZARI » SPATII » Comerciale

Localitate

Spatiu de vanzare Constanta-CONSTANTAID 6353
Tip spatiu Comercial
Suprafata construita (mp)
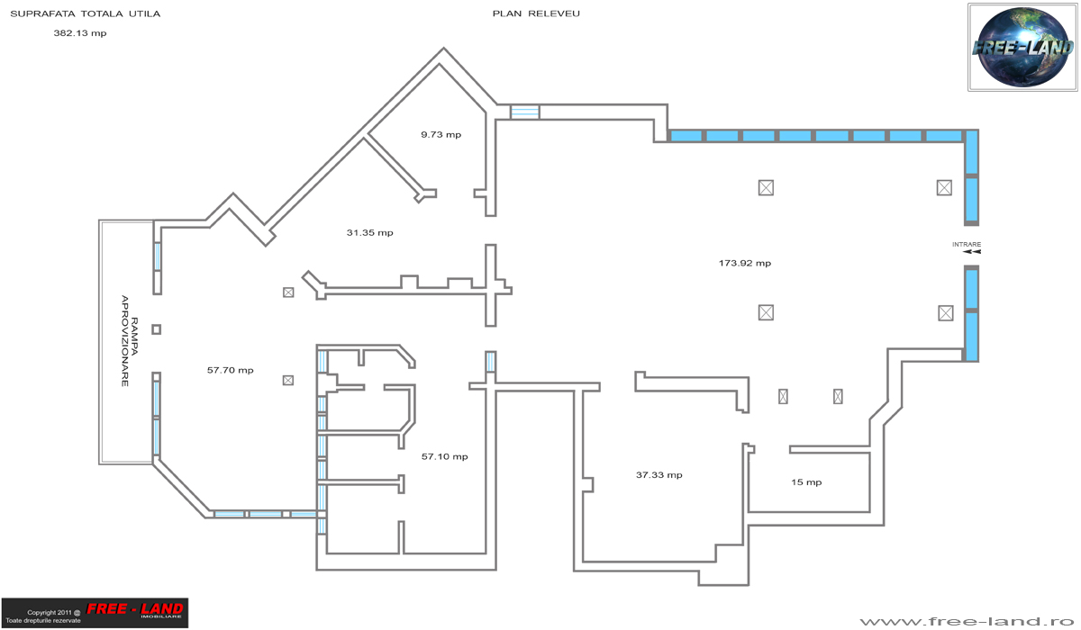
Suprafata utila (mp) 382
Suprafata teren (mp)
Pret 1 000 euro / mp + T V A
Moneda euro
Zona Gara
Descriere

  
 
 
 
 
 
 
 
Spatiu Comercial amplasat la parterul intr - un  imobil P + 8 etaje.
 
 suprafata utila .................382 mp

2 spatii de expunere
1 birou
2 spatii depozitare
4 grupuri sanitare
 
Dotari si finisaje
 
12 vitrine stradale ( 16.45 m)
tamplarie aluminiu
geamuri securizate
sistem alarma
sistem supraveghere video
sistem climatizare
racordat la termoficare
gresie
faianta
rampa aprovizionare
parcare
 
pret  1 000 euro / mp + T.V.A

Destinatii recomandate  -  companii asigurari, banci, birouri, show room-uri...
 
Oferta reprezentata exclusiv de FREE LAND Imobiliare

 



Spatiu de vanzare Constanta-CONSTANTA  Spatiu de vanzare Constanta-CONSTANTA  Spatiu de vanzare Constanta-CONSTANTA  
Spatiu de vanzare Constanta-CONSTANTA  Spatiu de vanzare Constanta-CONSTANTA  Spatiu de vanzare Constanta-CONSTANTA  Spatiu de vanzare Constanta-CONSTANTA  
Spatiu de vanzare Constanta-CONSTANTA